Zpět na výběr bytů
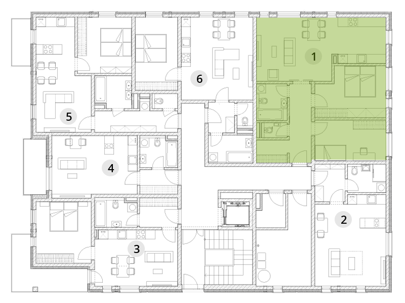
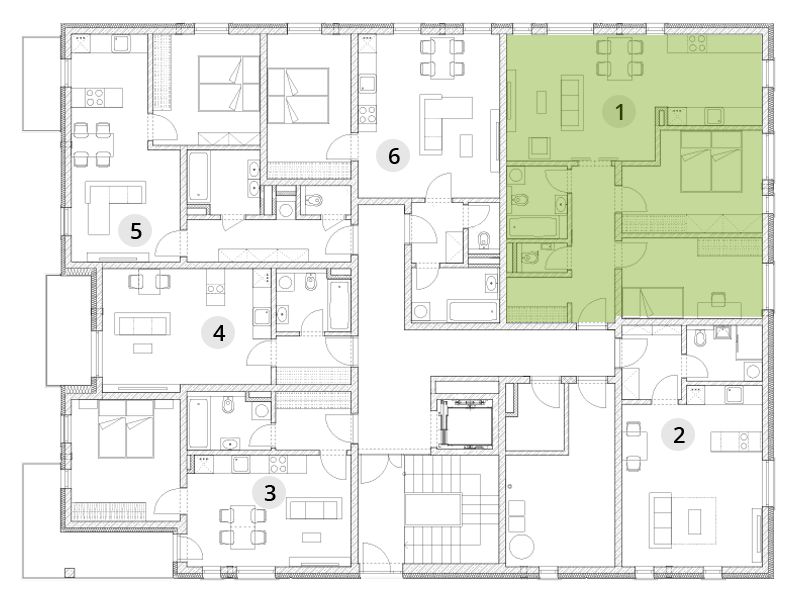
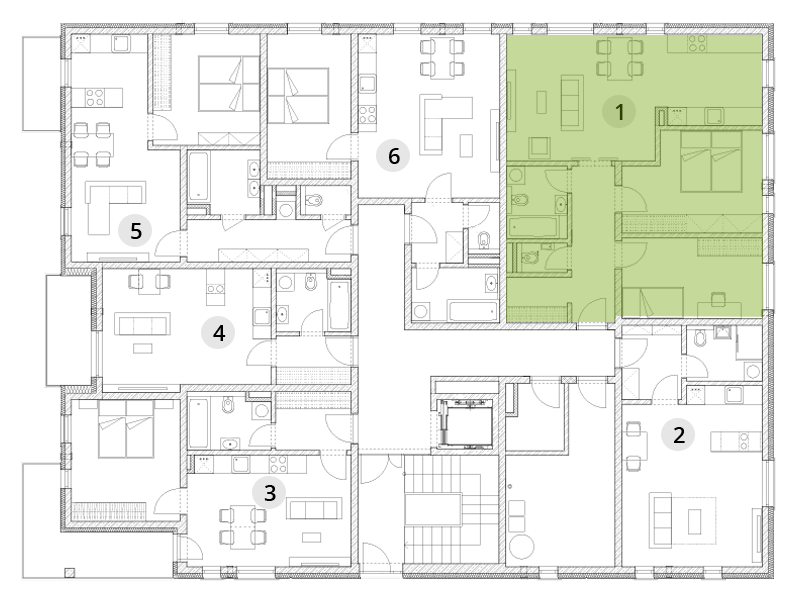
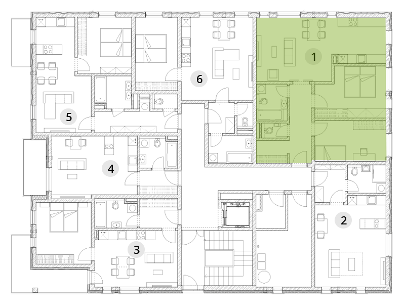
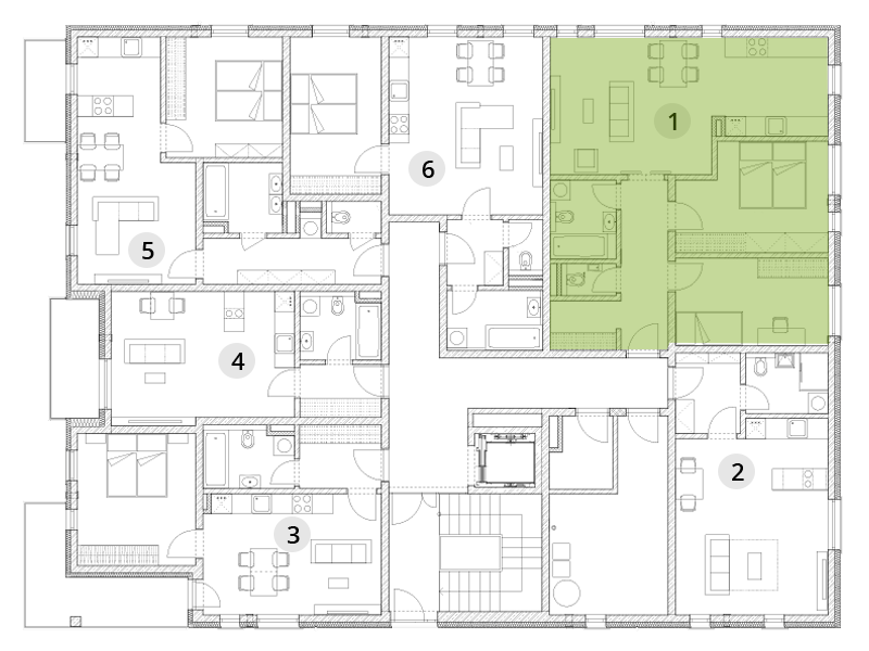
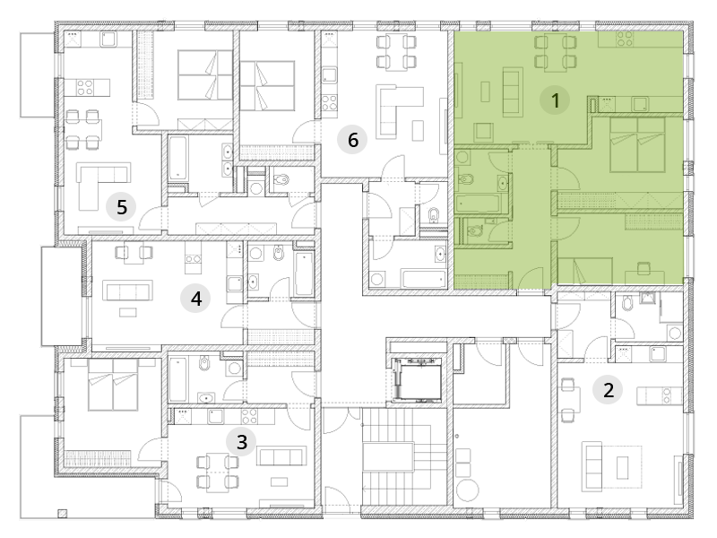
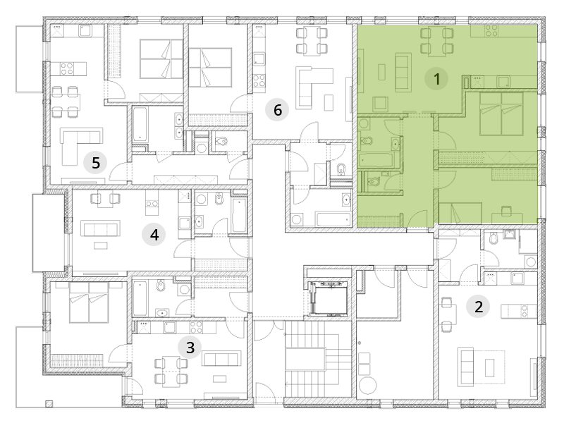
BD A - 1. np. - Byt 1
| Stav | Volný |
| Obytná plocha bytu | 72,98 m2 |
Byt 1
| 1 ZÁDVEŘÍ | 8,05 m2 |
| 2 ŠATNA | 2,88 m2 |
| 3 WC | 1,54 m2 |
| 4 KOUPELNA | 4,58 m2 |
| 5 OBÝVACÍ POKOJ + KK | 30,05 m2 |
| 6 LOŽNICE | 13,90 m2 |
| 7 POKOJ | 11,98 m2 |
Cena: 6 090 000 Kč
Cena včetně DPH
Ke stažení
Pozice bytu v budově
Ke stažení