Zpět na výběr bytů
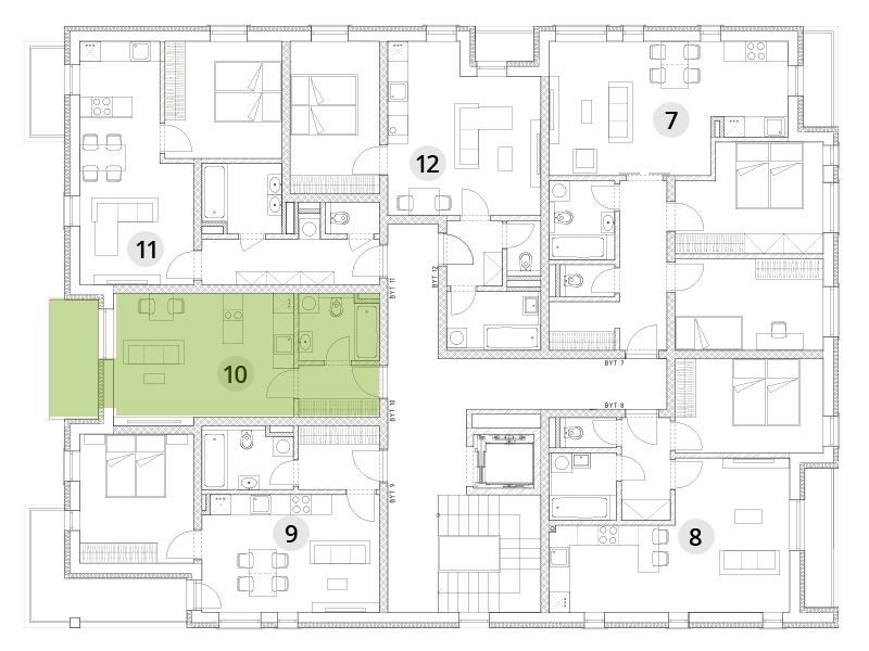
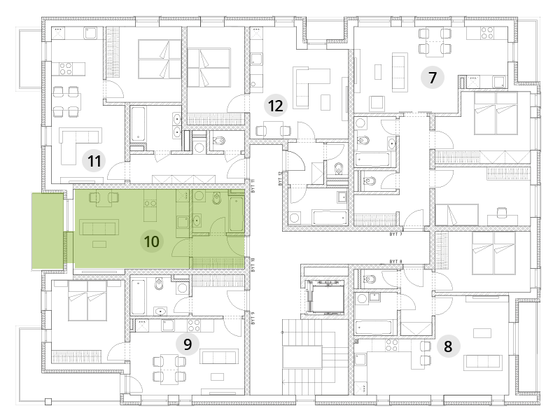
BD A - 2. np. - Byt 10
| Stav | Volný |
| Obytná plocha bytu | 29,26 m2 |
Byt 10
| 1 ZÁDVEŘÍ | 3,91 m2 |
| 2 KOUPELNA | 4,68 m2 |
| 3 OBÝVACÍ POKOJ + KK | 20,67 m2 |
| 4 BALKÓN | 5,36 m2 |
Cena: 3 250 000 Kč
Cena včetně DPH
Ke stažení
Pozice bytu v budově
Ke stažení