Zpět na výběr bytů
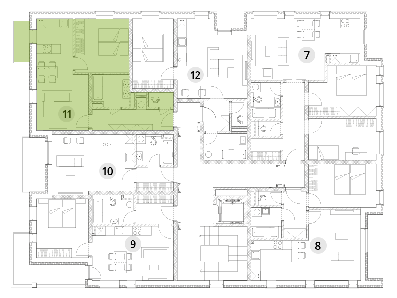
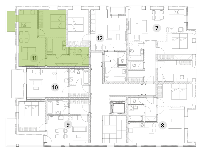
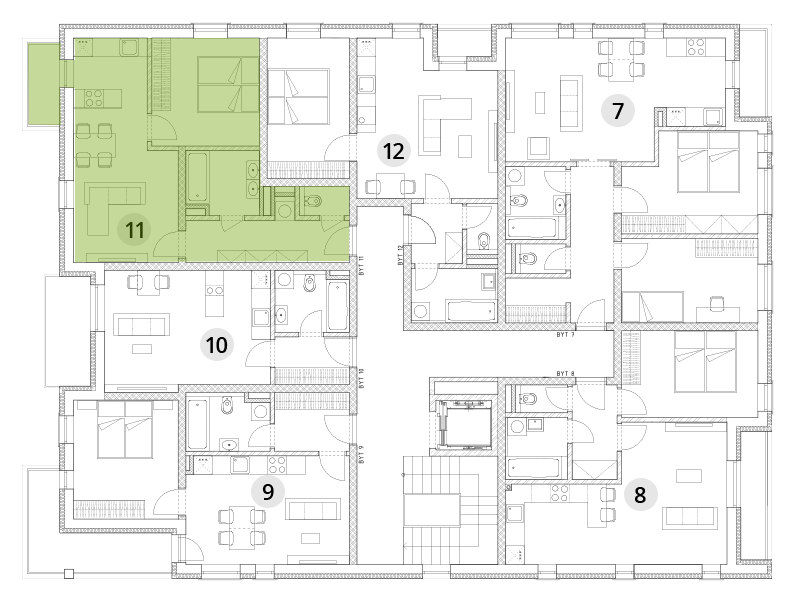
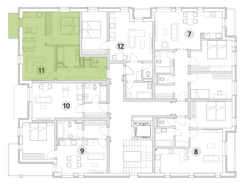
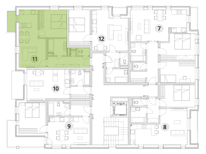
BD A - 2. np. - Byt 11
| Stav | Volný |
| Obytná plocha bytu | 48,14 m2 |
Byt 11
| 1 ZÁDVEŘÍ | 7,99 m2 |
| 2 WC | 1,63 m2 |
| 3 KOUPELNA | 4,82 m2 |
| 4 OBÝVACÍ POKOJ + KK | 21,34 m2 |
| 5 BALKÓN | 3,6 m2 |
| 6 LOŽNICE | 12,36 m2 |
Cena: 4 150 000 Kč
Cena včetně DPH
Ke stažení
Pozice bytu v budově
Ke stažení