Zpět na výběr bytů
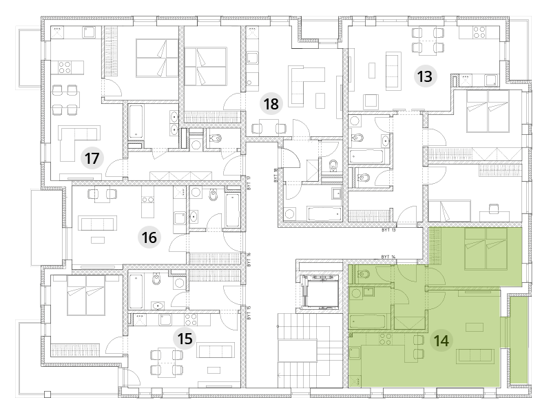
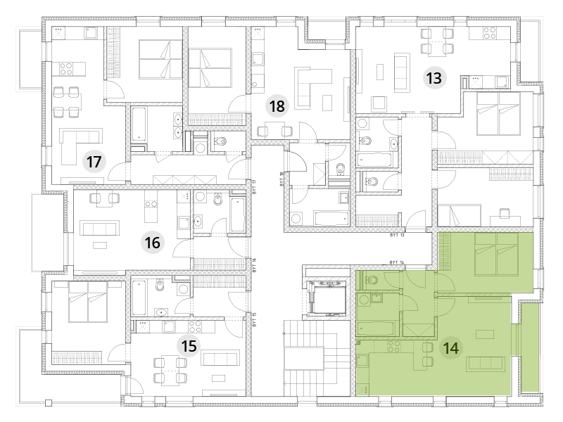
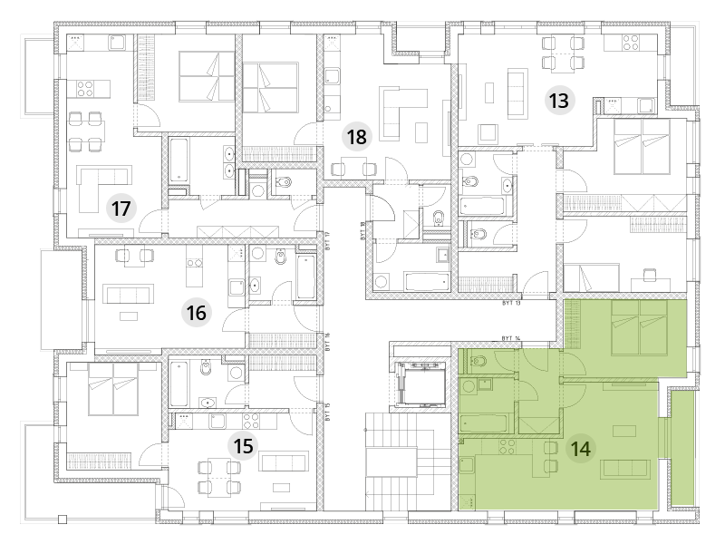
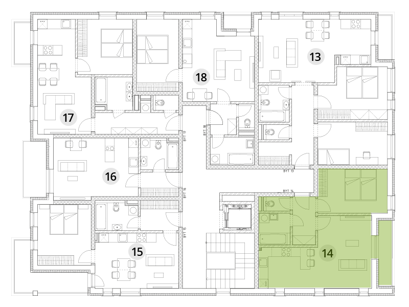
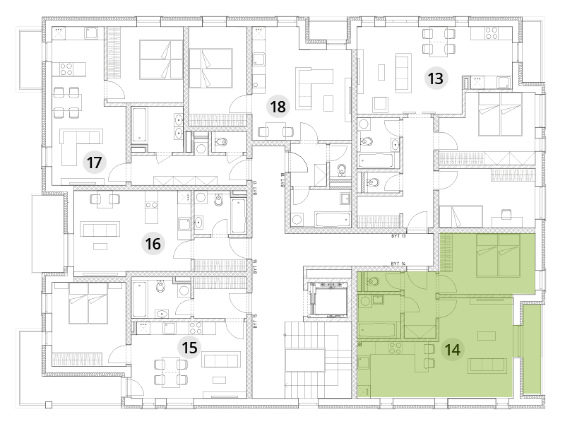
BD A - 3. np. - Byt 14
| Stav | Volný |
| Obytná plocha bytu | 49,08 m2 |
Byt 14
| 1 ZÁDVEŘÍ | 4,63 m2 |
| 2 WC | 1,51 m2 |
| 3 KOUPELNA | 4,1 m2 |
| 4 OBÝVACÍ POKOJ + KK | 26,2 m2 |
| 5 LODŽIE | 4,15 m2 |
| 6 LOŽNICE | 12,64 m2 |
Cena: 4 170 000 Kč
Cena včetně DPH
Ke stažení
Pozice bytu v budově
Ke stažení