Zpět na výběr bytů
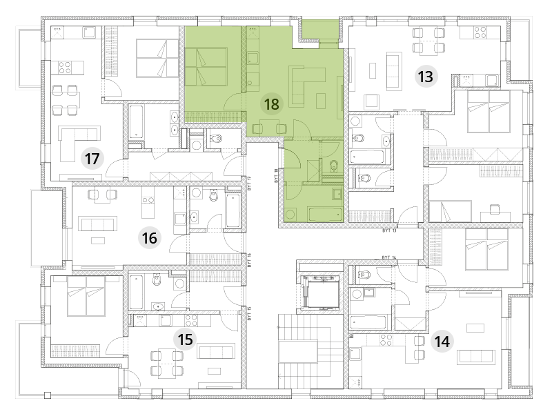
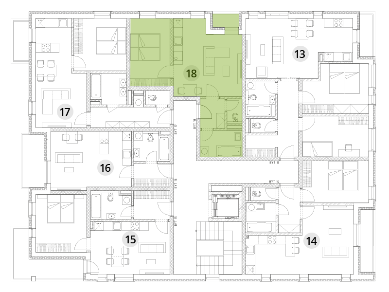
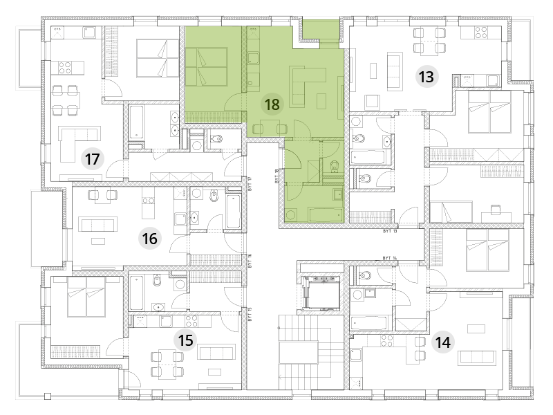
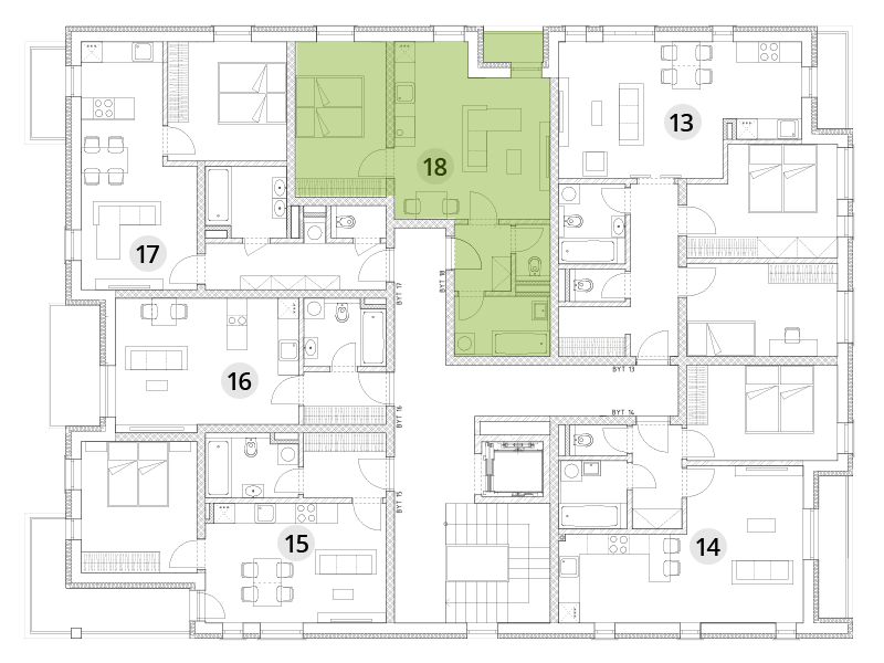
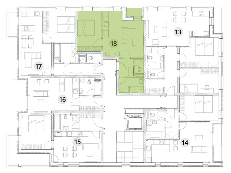
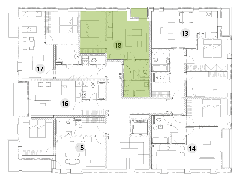
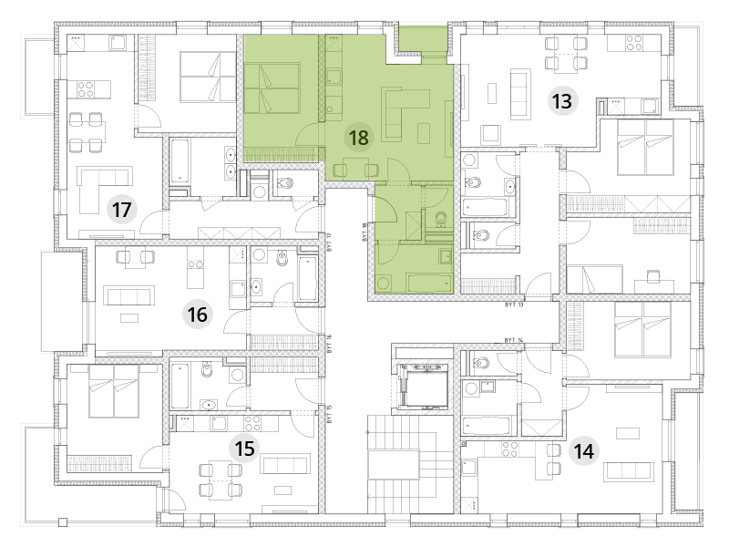
BD A - 3. np. - Byt 18
| Stav | Volný |
| Obytná plocha bytu | 44,09 m2 |
Byt 18
| 1 ZÁDVEŘÍ | 3,54 m2 |
| 2 WC | 1,65 m2 |
| 3 KOUPELNA | 4,93 m2 |
| 5 OBÝVACÍ POKOJ + KK | 21,69 m2 |
| 5 LODŽIE | 1,84 m2 |
| 6 LOŽNICE | 12,28 m2 |
Cena: 4 100 000 Kč
Cena včetně DPH
Ke stažení
Pozice bytu v budově
Ke stažení