Zpět na výběr bytů
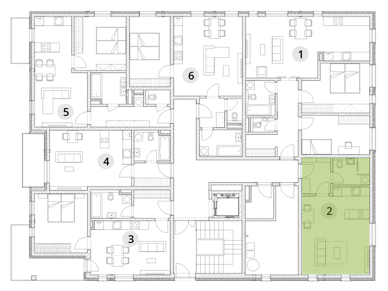
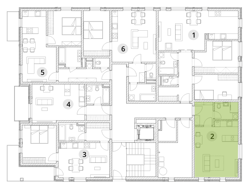
BD A - 1. np. - Byt 2
| Stav | Volný |
| Obytná plocha bytu | 34,92 m2 |
Byt 2
| 1 ZÁDVEŘÍ | 4,81 m2 |
| 2 KOUPELNA | 4,41 m2 |
| 3 OBÝVACÍ POKOJ + KK | 25,70 m2 |
Cena: 3 190 000 Kč
Cena včetně DPH
Ke stažení
Pozice bytu v budově
Ke stažení
| Stav | Volný |
| Obytná plocha bytu | 34,92 m2 |
| 1 ZÁDVEŘÍ | 4,81 m2 |
| 2 KOUPELNA | 4,41 m2 |
| 3 OBÝVACÍ POKOJ + KK | 25,70 m2 |
Cena: 3 190 000 Kč
Cena včetně DPH