Zpět na výběr bytů
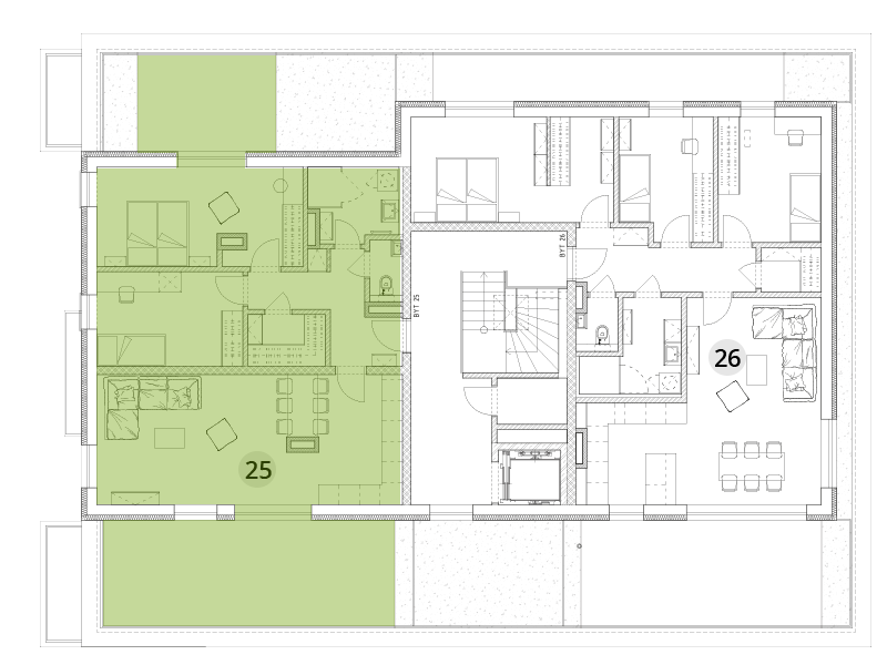
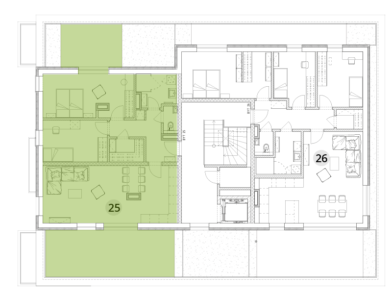
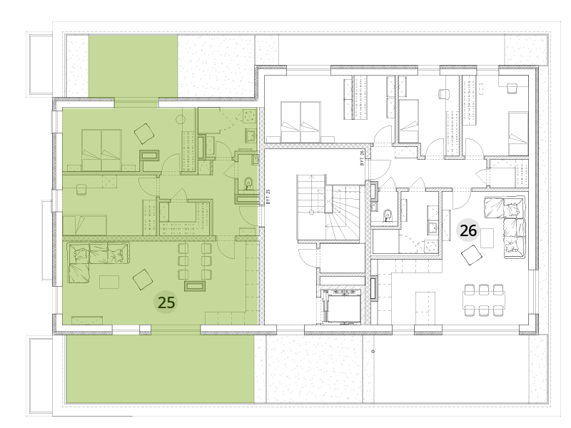
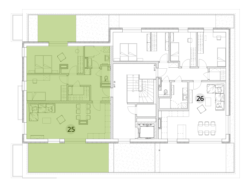
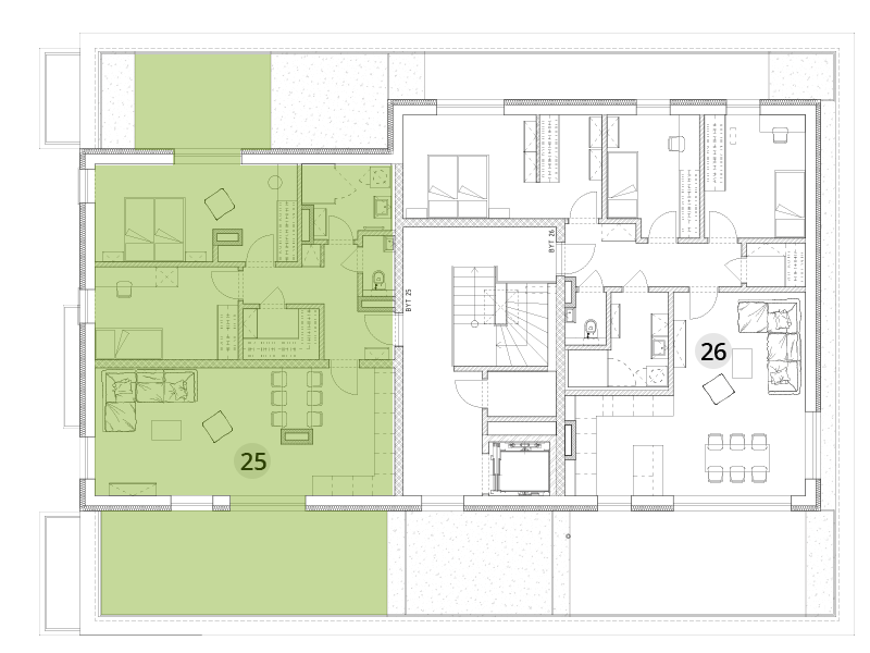
BD A - 5. np. - Byt 25
| Stav | Volný |
| Obytná plocha bytu | 82,85 m2 |
Byt 25
| 1 ZÁDVEŘÍ | 8,63 m2 |
| 2 TECHNICKÁ MÍSTNOST | 3,48 m2 |
| 3 OBÝVACÍ POKOJ + KK | 34,10 m2 |
| 4 POKOJ | 11,90 m2 |
| 5 LOŽNICE | 17,61 m2 |
| 6 KOUPELNA | 5,32 m2 |
| 7 WC | 1,81 m2 |
| 8 TERASA | 11,6 m2 |
| 9 TERASA | 27,0 m2 |
Cena: 8 800 000 Kč
Cena včetně DPH
Ke stažení
Pozice bytu v budově
Ke stažení