Zpět na výběr bytů
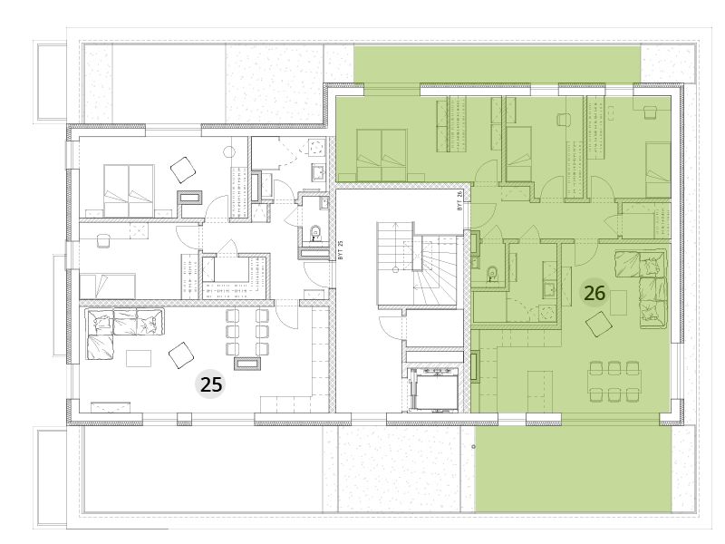
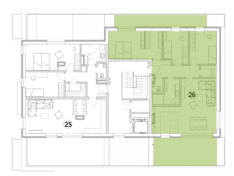
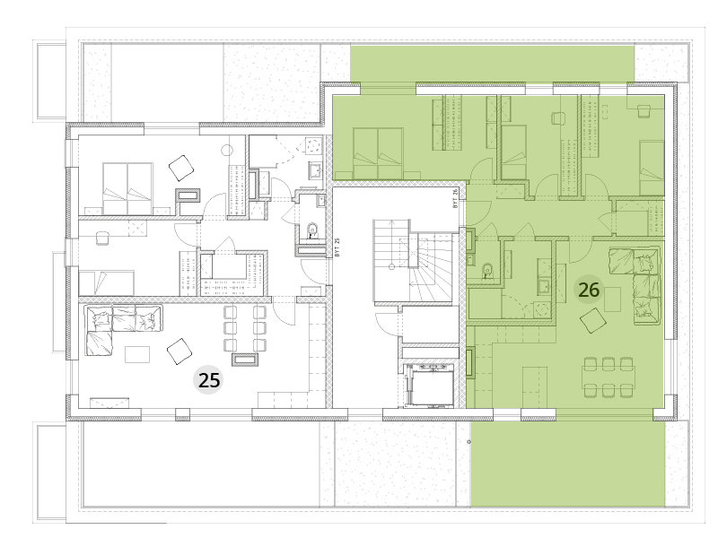
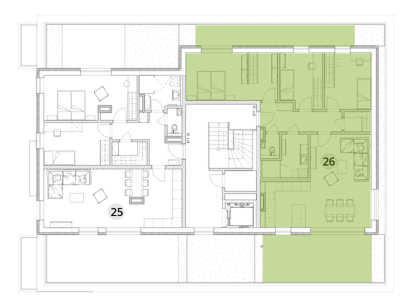
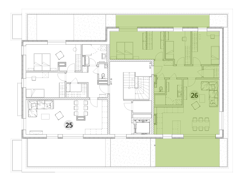
BD A - 5. np. - Byt 26
| Stav | Volný |
| Obytná plocha bytu | 90,52 m2 |
Byt 26
| 1 ZÁDVEŘÍ | 8,53 m2 |
| 2 LOŽNICE | 17,97 m2 |
| 3 POKOJ | 9,48 m2 |
| 4 POKOJ | 10,98 m2 |
| 5 ŠATNA | 2,38 m2 |
| 6 OBÝVACÍ POKOJ + KK | 32,97 m2 |
| 7 KOUPELNA | 6,32 m2 |
| 8 WC | 1,89 m2 |
| 9 TERASA | 14,69 m2 |
| 10 TERASA | 21,92 m2 |
Cena: 9 350 000 Kč
Cena včetně DPH
Ke stažení
Pozice bytu v budově
Ke stažení