Zpět na výběr bytů
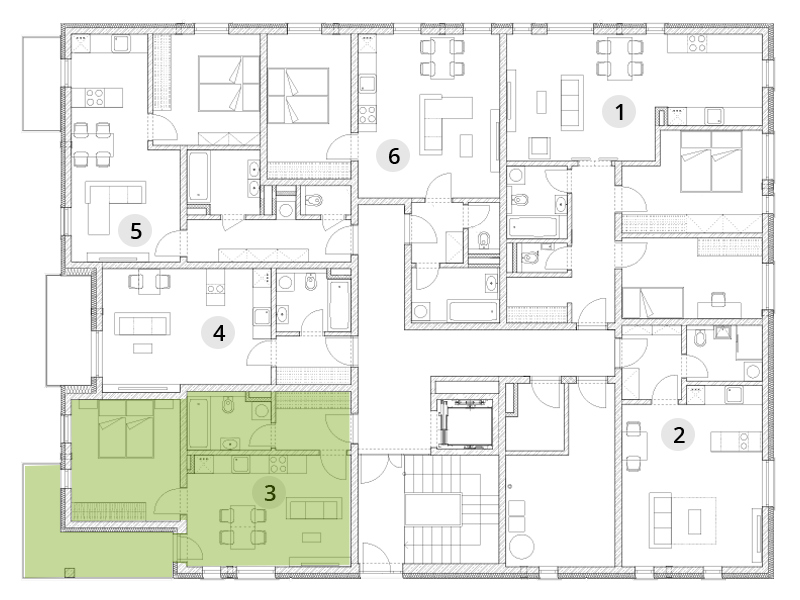
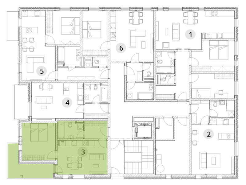
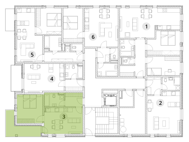
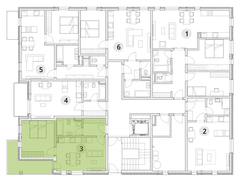
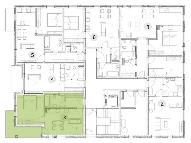
BD A - 1. np. - Byt 3
| Stav | Volný |
| Obytná plocha bytu | 43,41 m2 |
Byt 3
| 1 ZÁDVEŘÍ | 4,92 m2 |
| 2 KOUPELNA | 4,9 m2 |
| 3 OBÝVACÍ POKOJ + KK | 19,60 m2 |
| 4 LOŽNICE | 13,99 m2 |
| 5 BALKÓN | 9,63 m2 |
Cena: 4 220 000 Kč
Cena včetně DPH
Ke stažení
Pozice bytu v budově
Ke stažení