Zpět na výběr bytů
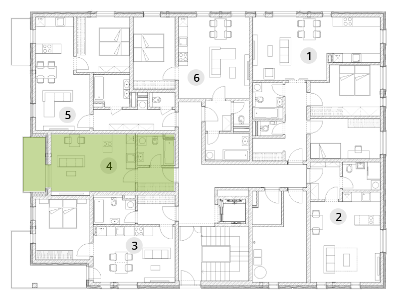
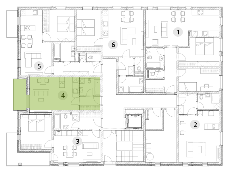
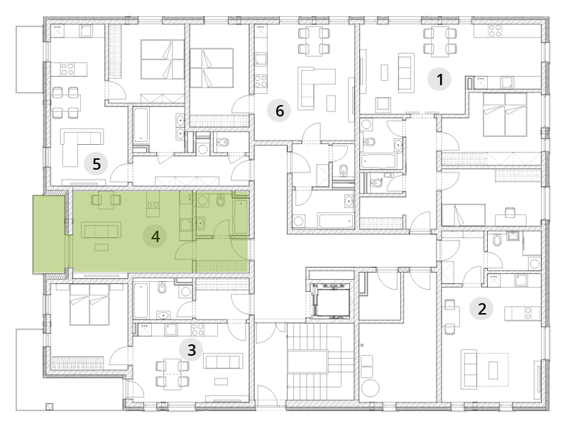
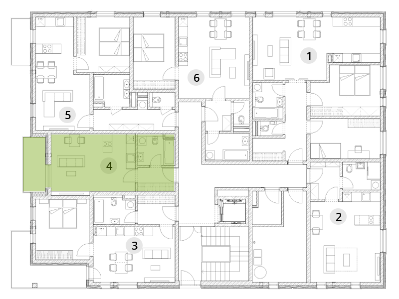
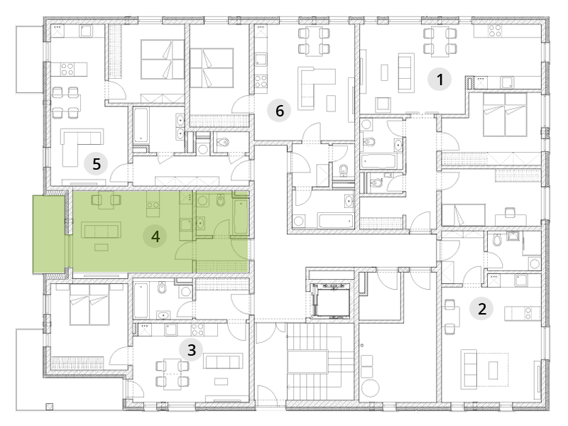
BD A - 1. np. - Byt 4
| Stav | Volný |
| Obytná plocha bytu | 30,02 m2 |
Byt 4
| 1 ZÁDVEŘÍ | 4,10 m2 |
| 2 KOUPELNA | 4,67 m2 |
| 3 OBÝVACÍ POKOJ + KK | 21,25 m2 |
| 4 BALKÓN | 5,36 m2 |
Cena: 3 190 000 Kč
Cena včetně DPH
Ke stažení
Pozice bytu v budově
Ke stažení