Zpět na výběr bytů
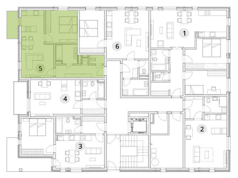
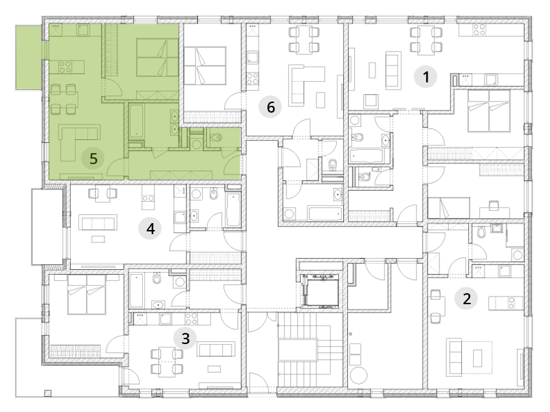
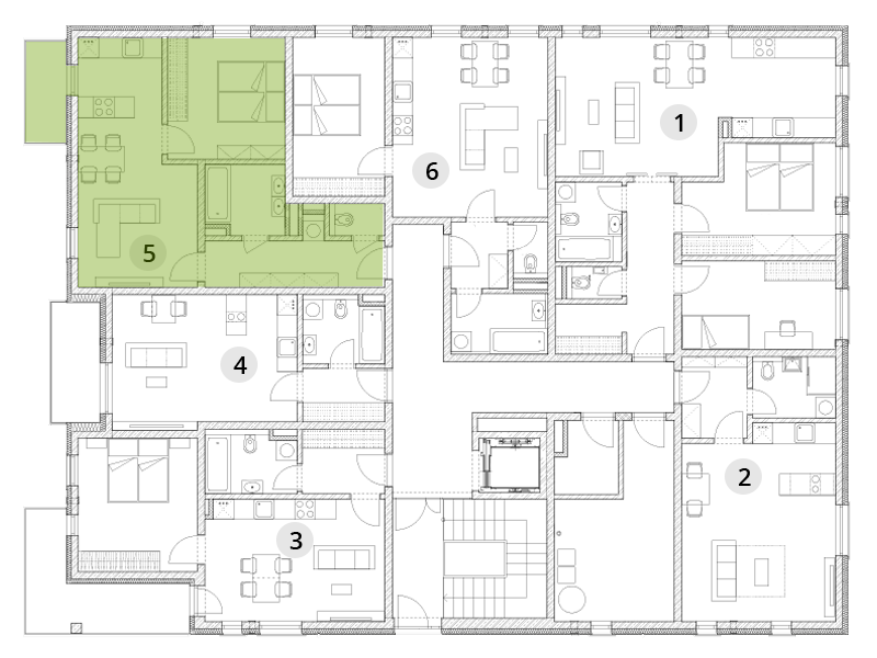
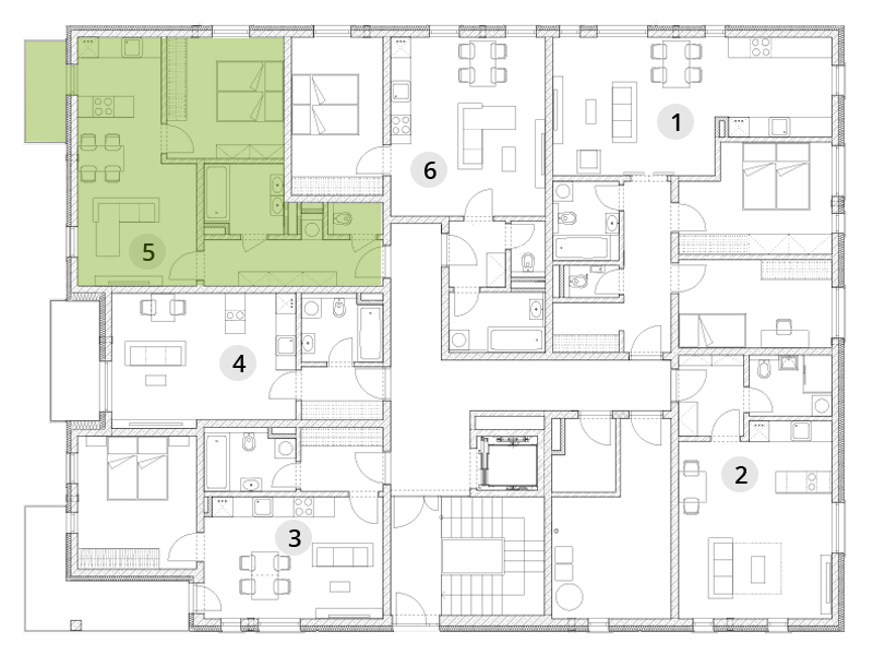
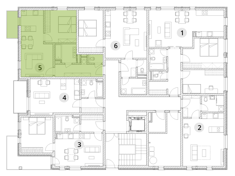
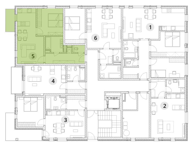
BD A - 1. np. - Byt 5
| Stav | Volný |
| Obytná plocha bytu | 49,28 m2 |
Byt 5
| 1 ZÁDVEŘÍ | 7,96 m2 |
| 2 WC | 1,66 m2 |
| 3 KOUPELNA | 4,82 m2 |
| 4 OBÝVACÍ POKOJ + KK | 22,24 m2 |
| 5 BALKÓN | 3,6 m2 |
| 6 LOŽNICE | 12,6 m2 |
Cena: 4 220 000 Kč
Cena včetně DPH
Ke stažení
Pozice bytu v budově
Ke stažení