Zpět na výběr bytů
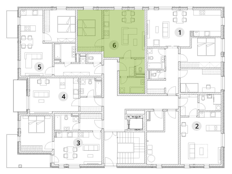
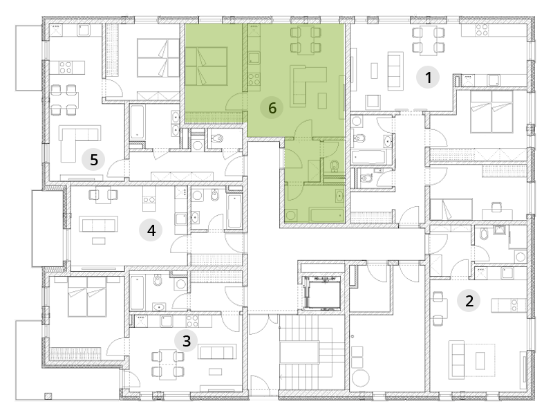
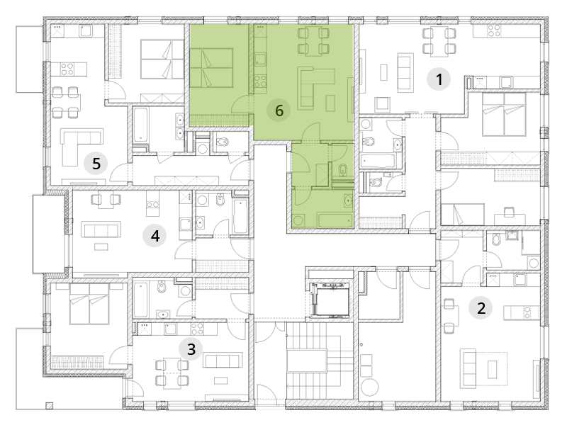
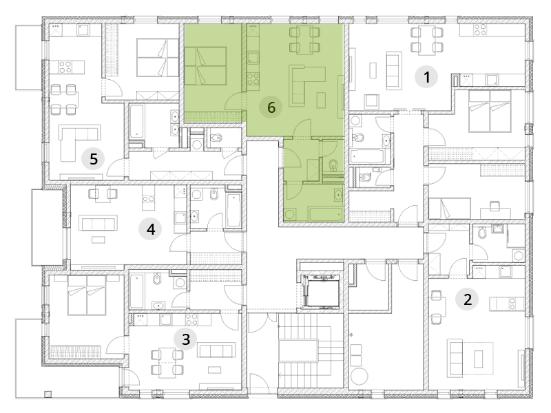
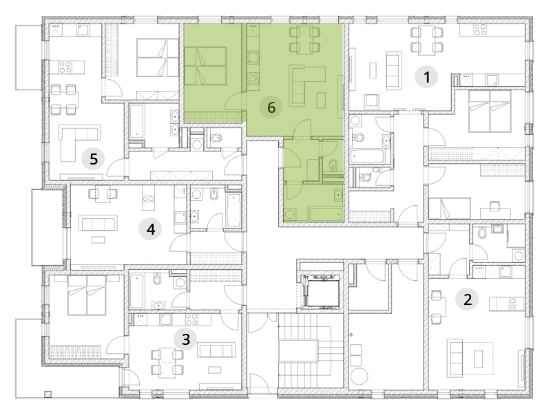
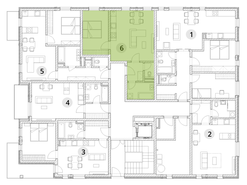
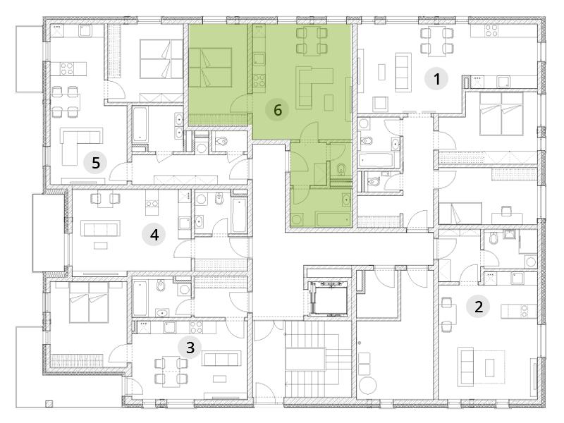
BD A - 1. np. - Byt 6
| Stav | Volný |
| Obytná plocha bytu | 47,91 m2 |
Byt 6
| 1 ZÁDVEŘÍ | 3,67 m2 |
| 2 WC | 1,70 m2 |
| 3 KOUPELNA | 5,12 m2 |
| 4 OBÝVACÍ POKOJ + KK | 24,62 m2 |
| 5 LOŽNICE | 12,80 m2 |
Cena: 4 050 000 Kč
Cena včetně DPH
Ke stažení
Pozice bytu v budově
Ke stažení