Zpět na výběr bytů
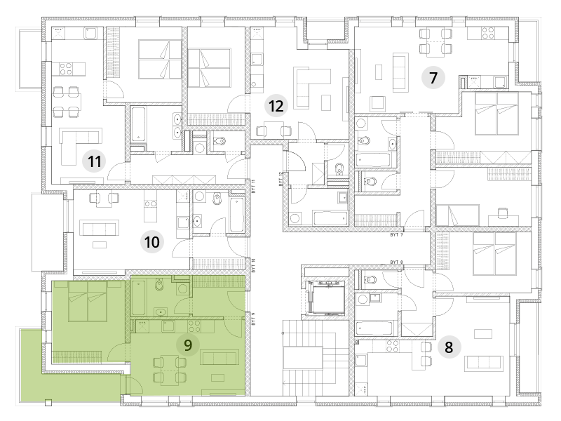
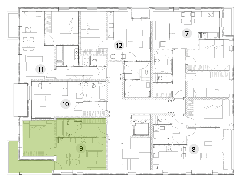
BD A - 2. np. - Byt 9
| Stav | Volný |
| Obytná plocha bytu | 42,21 m2 |
Byt 9
| 1 ZÁDVEŘÍ | 4,79 m2 |
| 2 KOUPELNA | 5 m2 |
| 3 OBÝVACÍ POKOJ + KK | 19,13 m2 |
| 4 LOŽNICE | 13,29 m2 |
| 5 BALKÓN | 9,63 m2 |
Cena: 4 220 000 Kč
Cena včetně DPH
Ke stažení
Pozice bytu v budově
Ke stažení