Zpět na výběr bytů
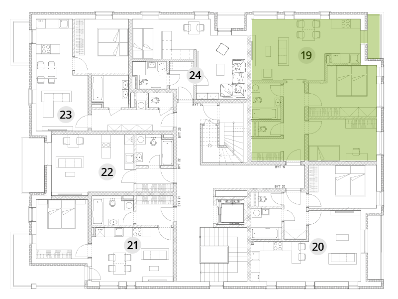
BD A - 4. np. - Byt 19
| Stav | Volný |
| Obytná plocha bytu | 69,20 m2 |
Byt 19
| 1 ZÁDVEŘÍ | 7,57 m2 |
| 2 ŠATNA | 2,95 m2 |
| 3 WC | 1,65 m2 |
| 4 KOUPELNA | 4,69 m2 |
| 5 OBÝVACÍ POKOJ + KK | 26,31 m2 |
| 6 LODŽIE | 3,15 m2 |
| 7 LOŽNICE | 13,71 m2 |
| 8 POKOJ | 12,32 m2 |
Cena: 6 150 000 Kč
Cena včetně DPH
Ke stažení
Pozice bytu v budově
Ke stažení