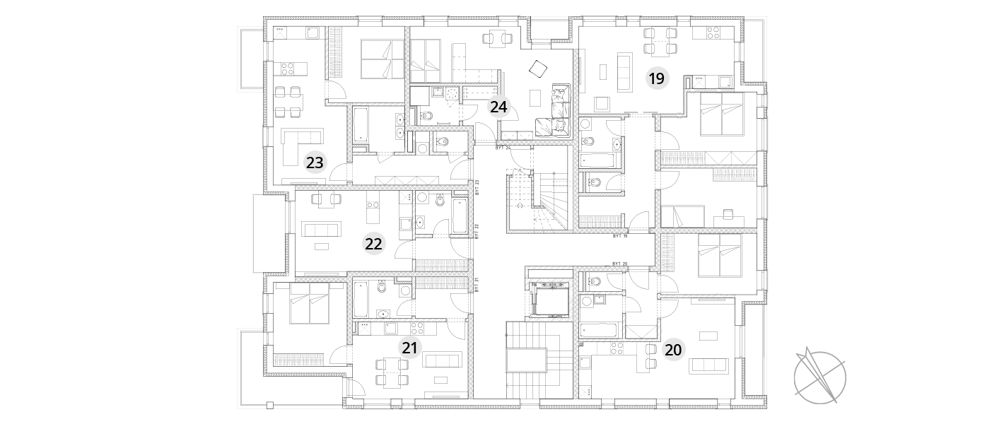
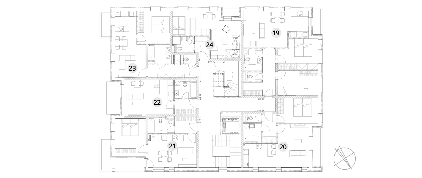
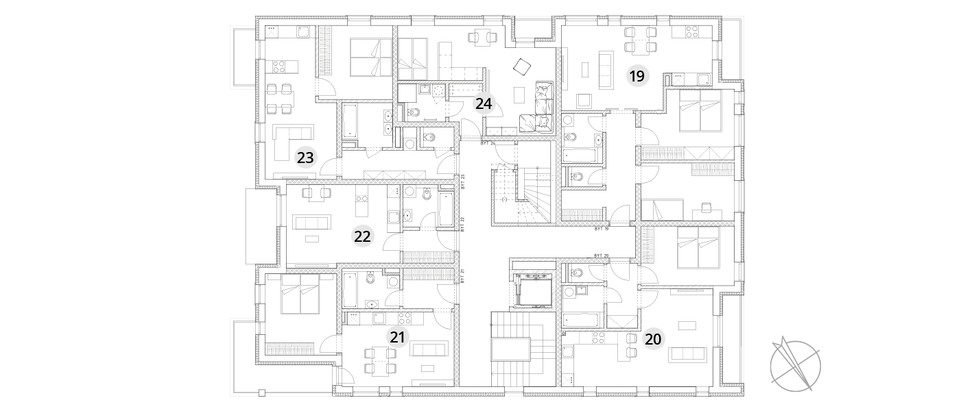
Podlaží
BD A - 4. np.
| Byt | Podlaží | Dispozice | Obytná plocha m2 | Balkón/Lodžie m2 | Cena s DPH | Stav |
|---|---|---|---|---|---|---|
| 19 | 4. np. | 3+kk | 69,20 | 3,15 | 5 900 000 Kč | Volný |
| 20 | 4. np. | 2+kk | 49,08 | 4,15 | 4 170 000 Kč | Volný |
| 21 | 4. np. | 2+kk | 42,21 | 9,63 | 4 150 000 Kč | Volný |
| 22 | 4. np. | 1+kk | 29,26 | 5,36 | 3 150 000 Kč | Volný |
| 23 | 4. np. | 2+kk | 48,14 | 3,6 | 4 150 000 Kč | Volný |
| 24 | 4. np. | 1+kk | 32,65 | 1,84 | 3 300 000 Kč | Volný |