Zpět na výběr bytů
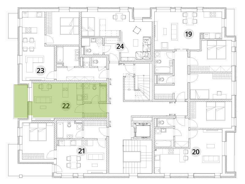
BD A - 4. np. - Byt 22
| Stav | Volný |
| Obytná plocha bytu | 29,26 m2 |
Byt 22
| 1 ZÁDVEŘÍ | 3,91 m2 |
| 2 KOUPELNA | 4,68 m2 |
| 3 OBÝVACÍ POKOJ + KK | 20,67 m2 |
| 4 BALKÓN | 5,36 m2 |
Cena: 3 150 000 Kč
Cena včetně DPH
Ke stažení
Pozice bytu v budově
Ke stažení