Zpět na výběr bytů
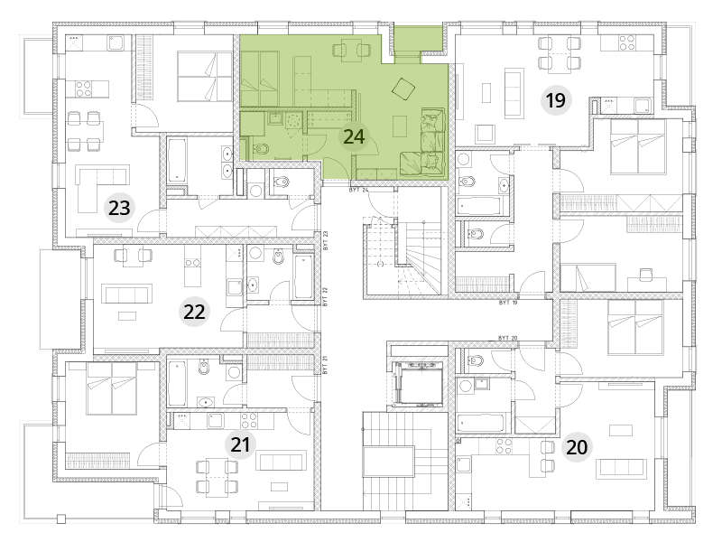
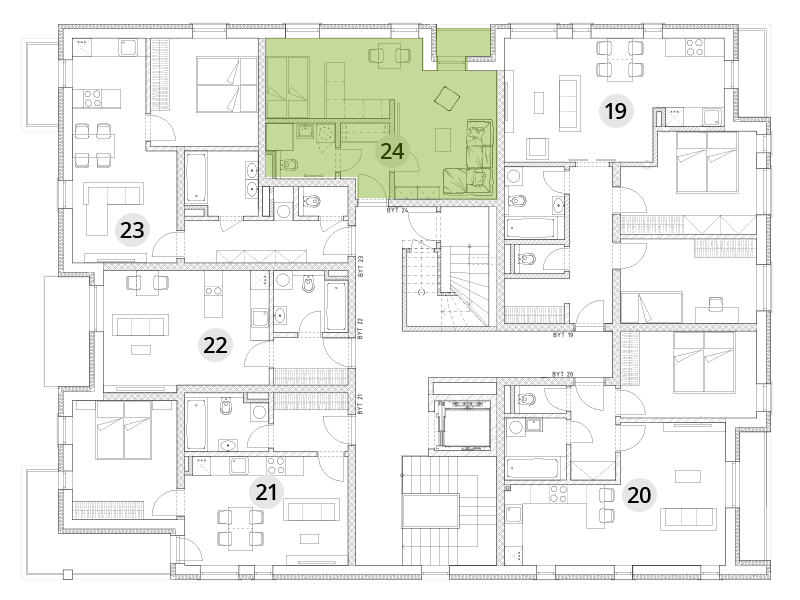
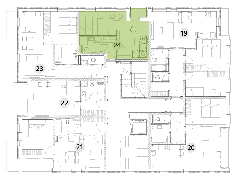
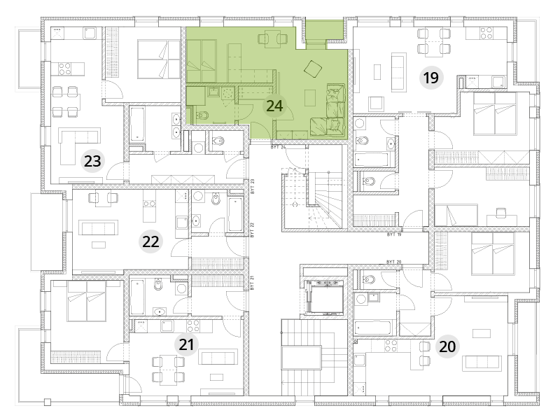
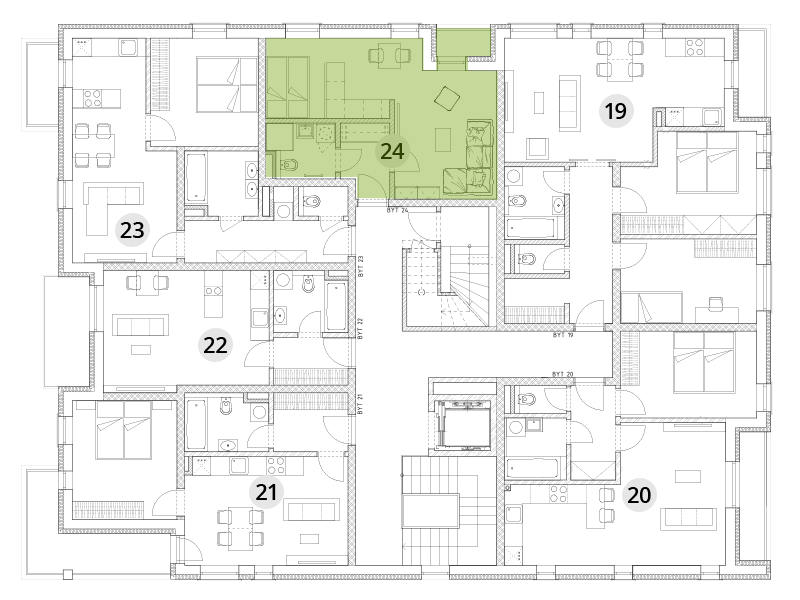
BD A - 4. np. - Byt 24
| Stav | Volný |
| Obytná plocha bytu | 32,65 m2 |
Byt 24
| 1 ZÁDVEŘÍ | 3,6 m2 |
| 2 OBÝVACÍ POKOJ + KK | 25,27 m2 |
| 3 LODŽIE | 1,84 m2 |
| 4 KOUPELNA | 3,78 m2 |
Cena: 3 300 000 Kč
Cena včetně DPH
Ke stažení
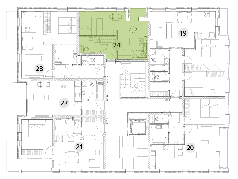
Pozice bytu v budově
Ke stažení