Zpět na výběr bytů
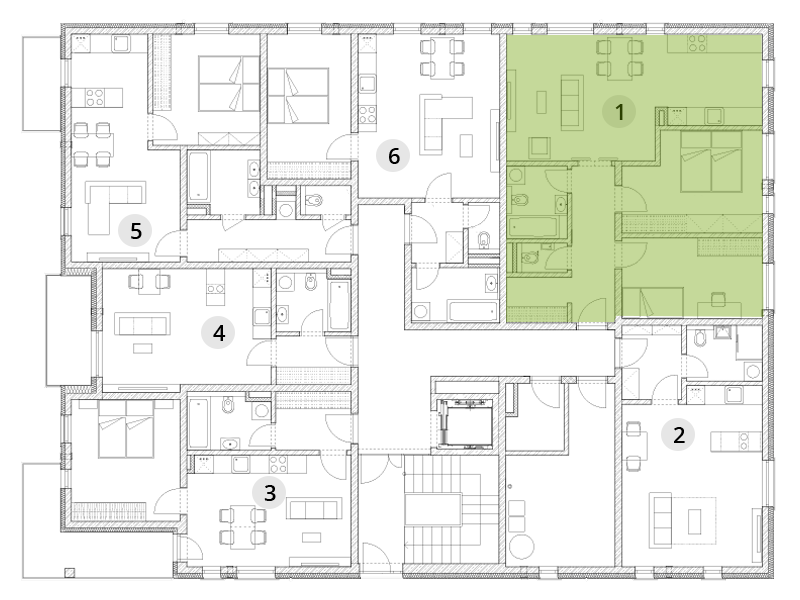
BD A - 1. np. - Byt 1
Stav | Volný |
Obytná plocha bytu | 72,98 m2 |
Byt 1
1 ZÁDVEŘÍ | 8,05 m2 |
2 ŠATNA | 2,88 m2 |
3 WC | 1,54 m2 |
4 KOUPELNA | 4,58 m2 |
5 OBÝVACÍ POKOJ + KK | 30,05 m2 |
6 LOŽNICE | 13,90 m2 |
7 POKOJ | 11,98 m2 |
Cena: 6 090 000 Kč
Cena včetně DPH
Ke stažení
Pozice bytu v budově

Ke stažení