Zpět na výběr bytů
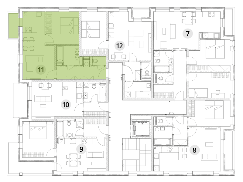
BD A - 2. np. - Byt 11
Stav | Volný |
Obytná plocha bytu | 51,74 m2 |
Byt 11
1 ZÁDVEŘÍ | 7,99 m2 |
2 WC | 1,63 m2 |
3 KOUPELNA | 4,82 m2 |
4 OBÝVACÍ POKOJ + KK | 21,34 m2 |
5 BALKÓN | 3,6 m2 |
6 LOŽNICE | 12,36 m2 |
Cena: 4 100 000 Kč
Cena včetně DPH
Ke stažení
Pozice bytu v budově

Ke stažení