Zpět na výběr bytů
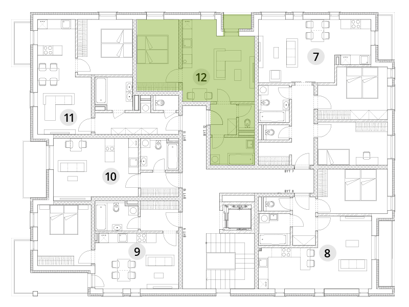
BD A - 2. np. - Byt 12
Stav | Volný |
Obytná plocha bytu | 45,93 m2 |
Byt 12
1 ZÁDVEŘÍ | 3,54 m2 |
2 WC | 1,65 m2 |
3 KOUPELNA | 4,93 m2 |
5 OBÝVACÍ POKOJ + KK | 21,69 m2 |
5 LODŽIE | 1,84 m2 |
6 LOŽNICE | 12,28 m2 |
Cena: 4 100 000 Kč
Cena včetně DPH
Ke stažení
Pozice bytu v budově

Ke stažení