Zpět na výběr bytů
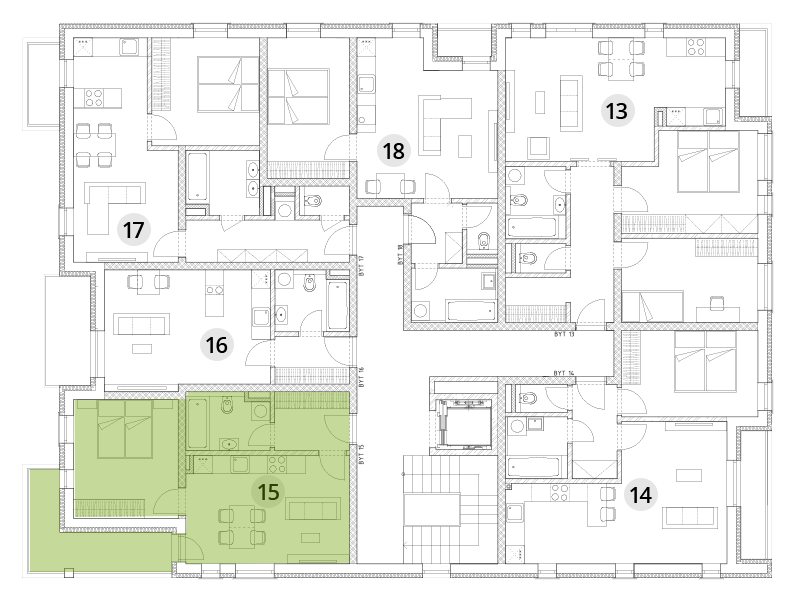
BD A - 3. np. - Byt 15
Stav | Volný |
Obytná plocha bytu | 51,84 m2 |
Byt 15
1 ZÁDVEŘÍ | 4,79 m2 |
2 KOUPELNA | 5 m2 |
3 OBÝVACÍ POKOJ + KK | 19,13 m2 |
4 LOŽNICE | 13,29 m2 |
5 BALKÓN | 9,63 m2 |
Cena: 4 100 000 Kč
Cena včetně DPH
Ke stažení
Pozice bytu v budově

Ke stažení