Zpět na výběr bytů
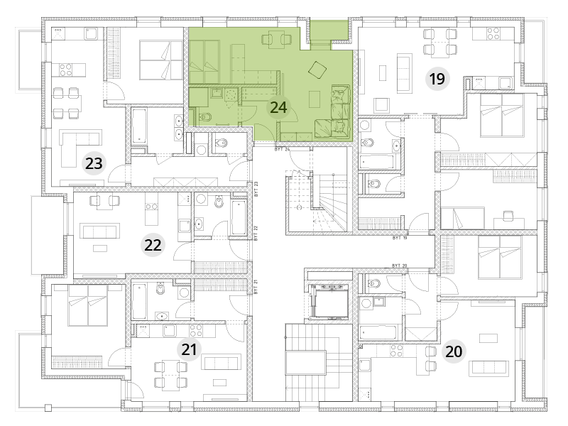
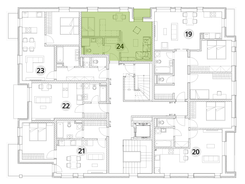
BD A - 4. np. - Byt 24
Stav | Volný |
Obytná plocha bytu | 34,47 m2 |
Byt 24
1 ZÁDVEŘÍ | 3,6 m2 |
2 OBÝVACÍ POKOJ + KK | 25,27 m2 |
3 LODŽIE | 1,84 m2 |
4 KOUPELNA | 3,78 m2 |
Cena: 3 300 000 Kč
Cena včetně DPH
Ke stažení
Pozice bytu v budově

Ke stažení