Zpět na výběr bytů
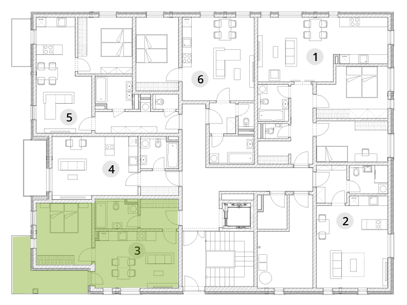
BD A - 1. np. - Byt 3
Stav | Volný |
Obytná plocha bytu | 53,04 m2 |
Byt 3
1 ZÁDVEŘÍ | 4,92 m2 |
2 KOUPELNA | 4,9 m2 |
3 OBÝVACÍ POKOJ + KK | 19,60 m2 |
4 LOŽNICE | 13,99 m2 |
5 BALKÓN | 9,63 m2 |
Cena: 4 100 000 Kč
Cena včetně DPH
Ke stažení
Pozice bytu v budově

Ke stažení