Zpět na výběr bytů
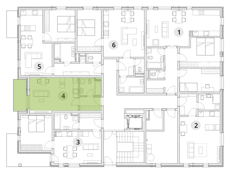
BD A - 1. np. - Byt 4
Stav | Volný |
Obytná plocha bytu | 35,38 m2 |
Byt 4
1 ZÁDVEŘÍ | 4,10 m2 |
2 KOUPELNA | 4,67 m2 |
3 OBÝVACÍ POKOJ + KK | 21,25 m2 |
4 BALKÓN | 5,36 m2 |
Cena: 3 150 000 Kč
Cena včetně DPH
Ke stažení
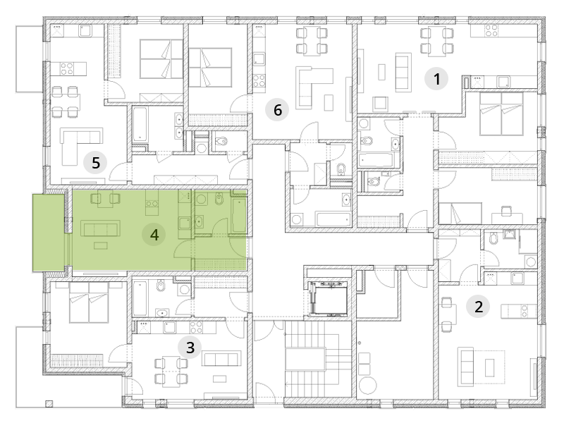
Pozice bytu v budově

Ke stažení