Zpět na výběr bytů
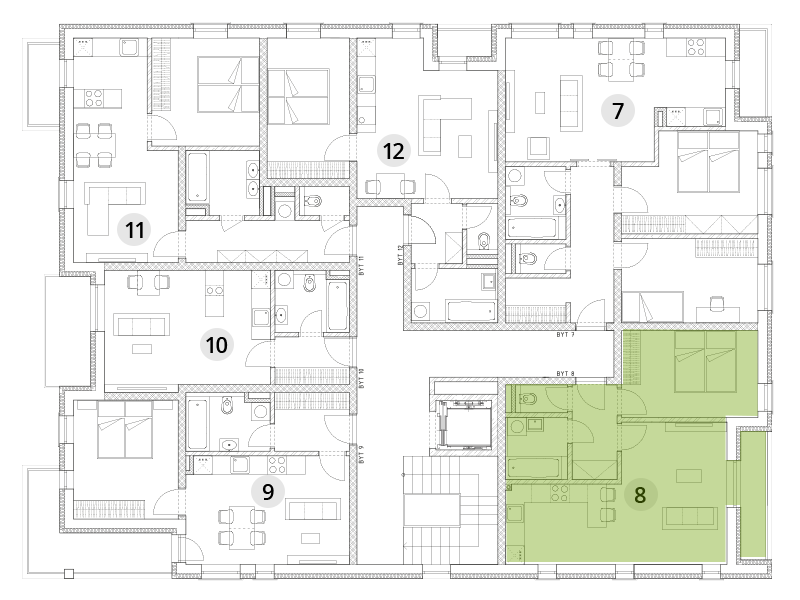
BD A - 2. np. - Byt 8
Stav | Volný |
Obytná plocha bytu | 53,22 m2 |
Byt 8
1 ZÁDVEŘÍ | 4,63 m2 |
2 WC | 1,51 m2 |
3 KOUPELNA | 4,1 m2 |
4 OBÝVACÍ POKOJ + KK | 26,2 m2 |
5 LODŽIE | 4,15 m2 |
6 LOŽNICE | 12,64 m2 |
Cena: 4 170 000 Kč
Cena včetně DPH
Ke stažení
Pozice bytu v budově

Ke stažení